+ 385 98 449 846
Ul. kralja Zvonimira 1, 21300, Makarska
Ref:S-2193    120   

CIJENA

Cijena na upit


STATUS

Prodaja
Novogradnja

Grad/Općina
Makarska
Naselje
Makarska
Županija
Splitsko-Dalmatinska
Površina
65 m2
Sobe
2
Kupaonice
1
Katnost
1
Izgradnja
2025

Površina m2

65


Sobe

2


Kupaonice

1


Tip

Stanovi
Stan u zgradi

Opis nekretnine

 

Nudimo u ponudi novogradnju u Makarskoj koja je krenula s izgradnjom početkom 2025.g.

Zgrada će se sastojati od suterena u kojem će biti smještena garažna parking mjesta, te prizemlja i 4 kata s ukupno 35 stambenih jedinica.

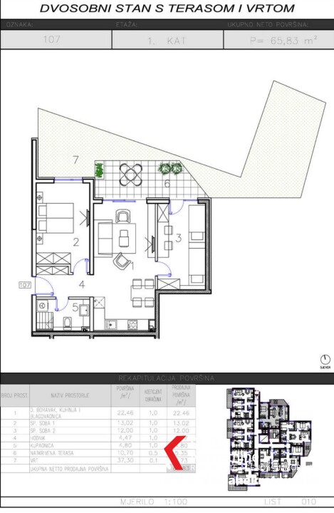
Na prodaju je dvosoban stan koji je smješten na 1.katu, te se sastoji od 

- kuhinje, dnevnog boravka i blagovaonice

- spavaća soba 1 

- spavaća soba 2 

- kupaonica 

- natkrivena terasa

- vrt 

Zgrada se nalazi u neposrednoj blizini vrtića, škole, igrališta, te trgovine, a udaljenost od mora je 600 metara što znači da svojom pozicijom predstavlja super priliku za investiciju u turističke svrhe, kao i za stanovanje.
Zgrada je građena po najvišim standardima te se koristi vrhunska oprema u gradnji i opremanju: keramičke pločice prve klase i visokokvalitetni parket, protuprovalna vrata na ulazu u stan, vrhunska zvučna i toplinska izolacija, stanovi su klimatizirani, podne vodilice za klizne stijenke na lođama bez pragova, električni podizači roletna, vanjski otvori sa tri komore i termoizolacijskim staklom, kupaonica u potpunosti opremljena za uporabu te s ugrađenim podnim grijanjem, tv, satelit i internet priključak. Zgrada posjeduje lift.
Mogućnost kupnje vanjskog parking mjesta ili garaže.
Završetak izgradnje se očekuje krajem/2026. godine, sva dokumentacija 1/1.

Karakteristike
OSNOVNO
Garaža
Parking
Balkon
Vrt
Protuprovalna vrata
Klimatizirano
KOMUNALIJE
Gradski vodovod
Gradska kanalizacija
Gradski plin
Elektrovod
DOZVOLE
Građevinska dozvola
Lokacijska dozvola
Vlasnički list
Dokumentacija 1/1
STANJE
Novogradnja
TEHNIKA
Portafon
Video portafon
Video nadzor
Kabelska TV
GRIJANJE
Klima

CIJENA

Cijena na upit


STATUS

Prodaja
Novogradnja

Grad/Općina
Makarska
Naselje
Makarska
Županija
Splitsko-Dalmatinska
Površina
65 m2
Sobe
2
Kupaonice
1
Katnost
1
Izgradnja
2025
Kontakt

AGENT

Olgica Andrijašević
385 91 615 1193
Stojano Bandur
385 91 649 0000

Pošaljite nam poruku..
Imajte na umu da za specifične informacije moramo kotaktirati vlasnika i da određene informacije možete dobiti samo u našem uredu.
Pregledali ste..